180° hinge set for ascending slopes - EXCENTRO
Item No.
P00008959 - EXCENTRO
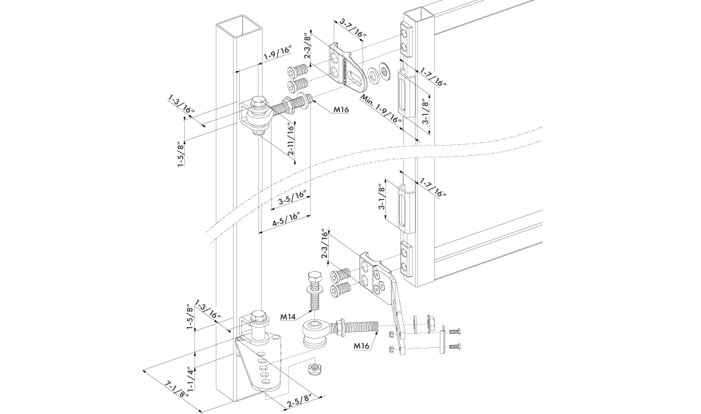
This hinge is the perfect solution for sloped driveways. The hinge opens in an upward movement inwards, allowing a perfect entry and exit on even the steepest slopes (from 2% up to 35%). Modular for gates with a Locinox GBMU4D-M16 preparation.
Specifications
| Specifications |
|
Drawings
Installation movies
Downloads
Product
On gate
On gate
2D/3D drawings
Installation instructions
Hinges specifications
180° 3-way adjustable strap hinge
Item No.
D00000081
TURNITEC base mechanism for 3-arm turnstile (120°)
Item No.
P00007712
Gate display with Rhino gate closer, industrial lock and BoltonHD-4D hinge
Item No.
D00000169
90° 2-Way adjustable bearing hinge
Item No.
P00006928