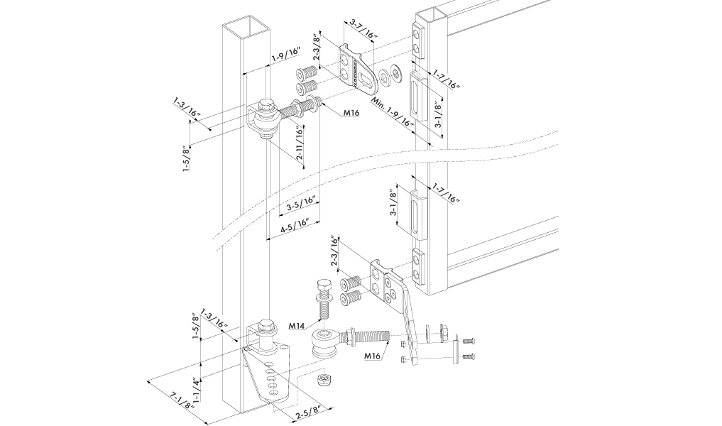
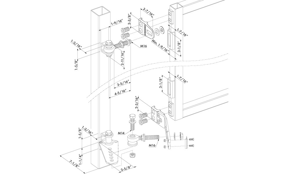
180° hinge set for ascending slopes - EXCENTRO
Item No.
P00008959 - EXCENTRO
This hinge is the perfect solution for sloped driveways. The hinge opens in an upward movement inwards, allowing a perfect entry and exit on even the steepest slopes (from 2% up to 35%). Modular for gates with a Locinox GBMU4D-M16 preparation.
Specifications
| Perfion__Bullets |
|
| Specifications |
|
Drawings
Installation movies
Downloads
Product
On gate
On gate
2D/3D drawings
Installation instructions
Hinges specifications
Weather resistant keypad with external relays
Item No.
P00009886