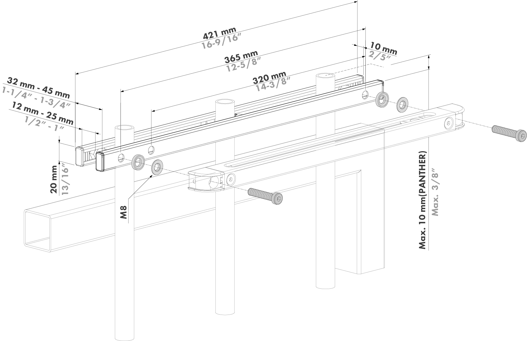
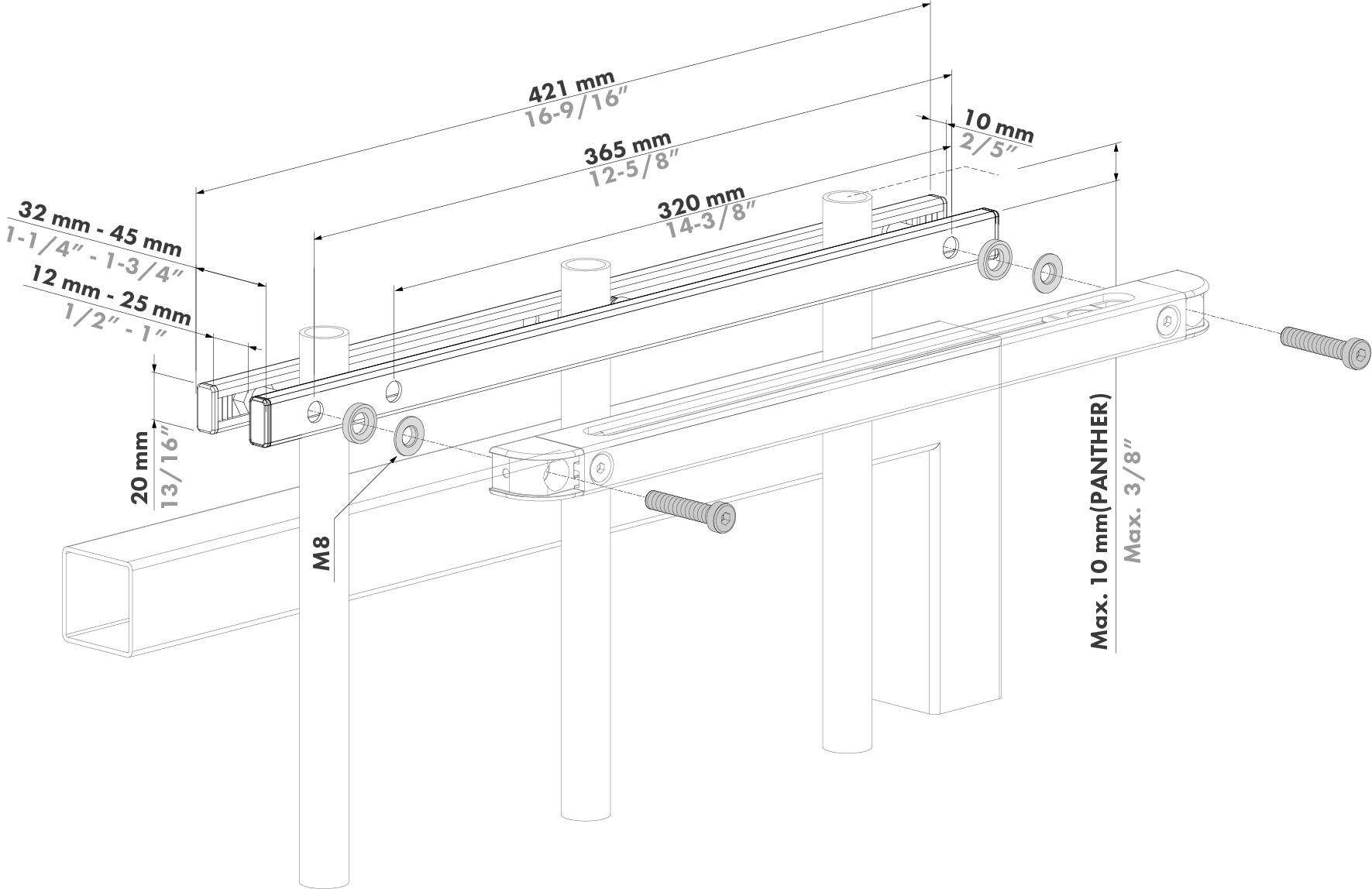
Stainless steel accessory for gate closer installation on barred fencing - RAIL-FIT
Item No.
P00002629 - RAIL-FIT
Stainless steel accessory for installation of the gate closer rails on alternative fencing. The accessory can be clamped onto any bar to mount the rail of the Panther, Lion or Verticlose-2(-WALL) gate closer.
Specifications
| Perfion__Bullets |
|
| Specifications |
|
Drawings
Downloads
2D/3D drawings
Installation instructions
Fixed anodized aluminum handle
Item No.
D00000099
Polyamide gate keep for round profiles
Item No.
D00000044
Hot-dip galvanized dropbolt
Item No.
D00000091